Holz-Alu Fenster
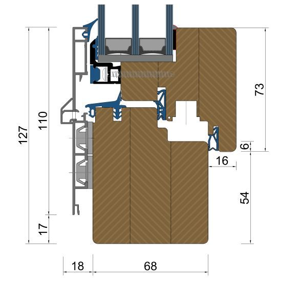
Beim Profil Titanium ist der Fensterrahmen nicht sichtbar und wird völlig von dem Blendrahmen Profil abgedeckt.
Dadurch entsteht von außen der visuelle Eindruck einer Festverglasung. Die Kanten der Profile sind hier eckig. Im Blendrahmen Profil wird eine zusätzliche geschweißte Dichtung eingebracht, welche die Dichtheit der Konstruktion zusätzlich erhöht. Das System kann sowohl als geschweißte Rahmen als auch mit gestanzten Eckverbindungen geliefert werden. Erhältlich ist das Holz-Alu Fenster in den Holzquerschnitten 68, 78 und 92.
Holz-Alu Fenster TITANIUM - Produktdetails:
Material:
- Kiefer + Aluminium
- Fichte + Aluminium
- Lärche + Aluminium
- Meranti + Aluminium
- Eiche + Aluminium
Schallschutzklasse:
- Rw=32-50dB (abhängig vom Glaspaket)
Verglasung:
- Doppel- oder Dreifachverglasung (z. B. Dreifachverglasung 4/18Ar/4/18Ar/4 – Zweikammerverglasung mit Argon), Wärmedämmung des Glases: Ug kann bis zu 0,79 W / m2k betragen
- Möglichkeit, jedes Glasset mit einer maximalen Dicke von Glaseinheiten bis zu 60 mm für ein 68 mm Blattprofil zu verwenden; Festverglasung - Möglichkeit, jedes Glasset mit einer maximalen Dicke von Glaseinheiten bis zu 44 mm für ein 68 mm Blattprofil zu verwenden
- Standard Aluminium Distanzstück. Optional ein "warmer Rahmen" in Farbe des Fensters
Beschläge:
- WinkHaus Activpilot, umlaufend mit einem Pilzkopf im Flügel; optional: höhere Einbruchhemmung durch RC1 oder RC2 mit mehreren Pilzköpfen im Flügel sowie abschließbaren Türgriffen
- Öffnungs- und Kippbegrenzung, Stopper für Balkontüren; verdeckte Beschläge WinkHaus Aktivpilot TopStar
Öffnungsart:
- Dreh
- Kipp
- Dreh-Kipp
Farbe:
- Aluminiumfarbe ausgewählt aus Musterpalette
- Deckfarben aus der RAL Palette oder Lasur (sichtbare Holzstruktur) mit Farbauswahl; Dreifachbeschichtung ( Deckfarbe, Grundierung, Imprägnierung) oder Vierfachbeschichtung (Deckfarbe, Zwischenschicht, Grundierung, Imprägnierung)
Silikon:
- Standardmäßig Transparent oder angepasst an die Farbe des Fensters
- Verfügbare Farben: Weiß, Cremeweiß, Grauweiß, transparent/Grau, Hellgrau, Grau, Silbergrau, Betongrau, Jasmin, Helleiche, Dunkeleiche, Kiefernbraun, Ockerbraun, Mittelbraun, Rehbraun, Schokoladenbraun Dunkelbraun, Schwarz
Griffe:
- Hoppe Luxemburg in den Farben Weiß, Altgold, Silber oder Braun
- optional andere Griffe aus dem Hoppe Katalog


