Holz-Alu Fenster
Der Fenstertyp Olimpico ist für Passivhäuser bestimmt.
Aufgrund seiner hervorragenden Wärme- und Schalldämmung, seiner Dichtheit und der hohen Windlast ist das Fenster für den Einsatz in modernen Konstruktionen mit hohen Energiesparanforderungen geeignet.
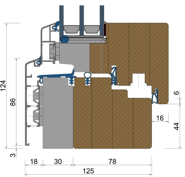
Zwischen Aluschale und Holzfenster befindet sich ein Polysterol-Schaum der gemeinsam mit der verbreiterten Hauptdichtung, der mittleren Dichtung, der Polietylen-Schnur und vor allem dem Glaspaket dafür sorgt, daß dieses Fenster einen Uw Wert ab 0,64 W(m2K) erreicht.
Der Holzquerschnitt für dieses Fenster ist 78 mm. Die Eckkanten werden, auf Wunsch, gestanzt oder verschweißt. Auf dieses Holz-Alu Fenster erhalten Sie 5 Jahre Garantie.
Holz-Alu Fenster OLIMPICO - Produktdetails:
Material:
- Kiefer + Aluminium
- Fichte + Aluminium
- Lärche + Aluminium
- Meranti + Aluminium
- Eiche + Aluminium
Schallschutzklasse:
- Rw=32-50dB (abhängig vom Glaspaket)
Verglasung:
- Doppel- oder Dreifachverglasung (z. B. Dreifachverglasung 4/18Ar/4/18Ar/4 – Zweikammerverglasung mit Argon), Wärmedämmung des Glases: Ug kann bis zu 0,5 W/m2k betragen
- Standard Aluminium Distanzstück. Optional ein "warmer Rahmen" in Farbe des Fensters
Beschläge:
- WinkHaus Activpilot, umlaufend mit einem Pilzkopf im Flügel; optional: höhere Einbruchhemmung durch RC1 oder RC2 mit mehreren Pilzköpfen im Flügel sowie abschließbaren Türgriffen;
- Öffnungs- und Kippbegrenzung, Stopper für Balkontüren; verdeckte Beschläge WinkHaus Aktivpilot TopStar
Öffnungsart:
- Dreh,
- Kipp,
- Dreh-Kipp
Farbe:
- Aluminiumfarbe ausgewählt aus Musterpalette
- Deckfarben aus der RAL Palette oder Lasur (sichtbare Holzstruktur) mit Farbauswahl;
- Dreifachbeschichtung ( Deckfarbe, Grundierung, Imprägnierung) oder Vierfachbeschichtung (Deckfarbe, Zwischenschicht, Grundierung, Imprägnierung)
Silikon:
- Standardmäßig Transparent oder angepasst an die Farbe des Fensters
- Verfügbare Farben: Weiß, Cremeweiß, Grauweiß, transparent/Grau, Hellgrau, Grau, Silbergrau, Betongrau, Jasmin, Helleiche, Dunkeleiche, Kiefernbraun, Ockerbraun, Mittelbraun, Rehbraun, Schokoladenbraun Dunkelbraun, Schwarz
Griffe:
- Hoppe Luxemburg in den Farben Weiß, Altgold, Silber oder Braun
- optional andere Griffe aus dem Hoppe Katalog


